ItalianoEnglish
1200 m2
Caratteristiche principali
Codice
V1236
Prezzo
215.000 EUR
Classe
G
Locali
12
Mq Giardino
80000
Altre caratteristiche e accessori
Piano
Piano Terra
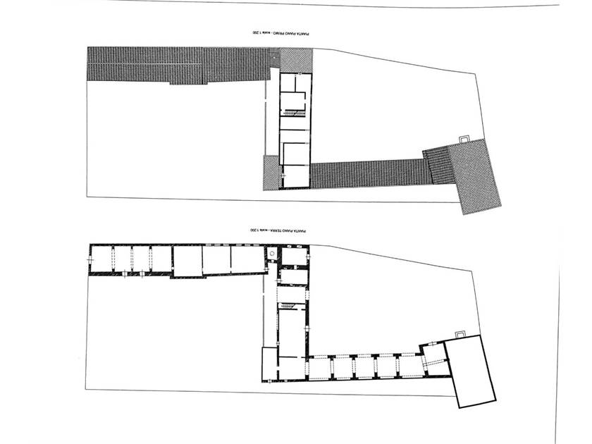
È a partire dalla seconda metà del XV secolo, a causa dei cambiamenti economico-strutturali, che il contadino preferisce abbandonare l’insediamento rurale per diventare pendolare, spostandosi dalla campagna al borgo pianificato. Sui siti di villaggi medievali abbandonati, sorgono le masserie, molto spesso fortificate a causa delle continue scorrerie turche; alcune di esse erano provviste di tanti servizi, tra cui le cappelle. La masseria che proponiamo risulta in cattivo stato di abbandono con grossi lavori di ricostruzione , ma la sua imponenza , circa 1300 mq coperti , gli oltre 80.000 mq di terreno di pertinenza la vicinanza al mare (5 km ) e la sua naturale predilezione a diventare struttura di aggregazione ne fanno una struttura quasi unica sul territorio . Da una serie di verifiche fatte è possibile ampliare la struttura di un ulteriore 20/25 % per una superficie complessiva di circa 1600 mq .
via prov.le per Casarano , Ugento (LE)
Cookie preference